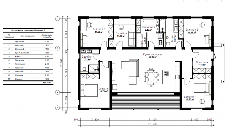
Дом из газобетонных блоков 167,32 кв.м.
Нашей компанией выполнено строительство дома из газобетонных блоков в комплектации тёплый контур. \
Дом с внутренней отделкой сдан в нобре 2022 г.
Тёплый контур сдан в сентябре 2021 г.
Выполняется тёплый контур (утеплённый финский фундамент, стены, остекление)




















